Inwentaryzacja budynku, projekt zamienny, rzuty / szkice
Jedlnia-Letnisko Pokaż na mapie ›
Odświeżone: Środa, 07 Styczeń, 2026 07:32
Szczegóły ogłoszenia
- Kategoria: Usługi / Pozostałe usługi
Opis oferty
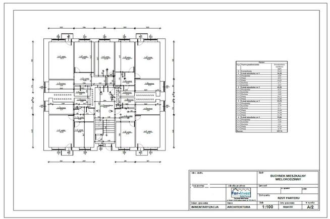
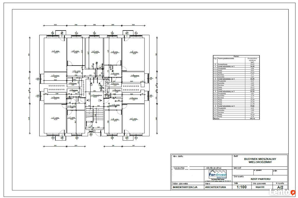
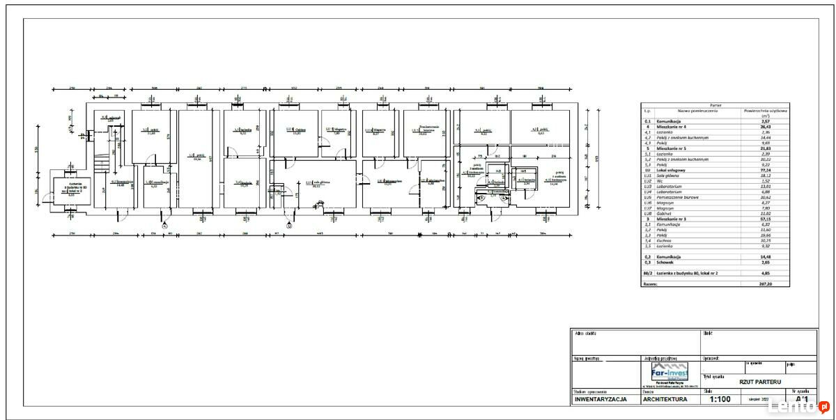
Wykonujemy inwentaryzację nieruchomości. Pomiary wewnątrz i zewnętrz odzwierciedlają faktyczny stan i określają powierzchnię użytkową budynku.Inwentaryzacja wykonywana jest w przypadku braku dokumentacji projektowej.
Wykonujemy:
- Inwentaryzacje budynku mieszkalnego jednorodzinnego.
- Inwentaryzacje budynku mieszkalnego wielorodzinnego.
- Inwentaryzacje budynku gospodarczego, garażowego.
- Inwentaryzacje budynku magazynowego, produkcyjnego.
- Inwentaryzacje budynku handlowego, usługowego.
Przykładowe cele inwentaryzacji:
- inwentaryzacja do celów podatkowych ( ustalenie powierzchni do podatku od nieruchomości),
- inwentaryzacja do wykonania świadectwa energetycznego, certyfikatu energetycznego,
- inwentaryzacja do wykonania audytu energetycznego,
- inwentaryzacja do wykonania opinii o wartości nieruchomości,
- inwentaryzacja do operatu szacunkowego,
- inwentaryzacja do wykonania kosztorysu i przedmiaru robót przy pozyskaniu dotacji m.in. z ARiMR, LGD, MOPS, PFRON,
- szkice obiektu stanowiące załączniku do kosztorysu i wyceny nieruchomości,
- inwentaryzacja do dla potrzeb uzyskania kredytu hipotecznego.
Inwentaryzacja wykonywana jest w 2 egzemplarzach wydrukowanych.
Cena ustalana indywidualnie i uzależniona jest od wielkości i nakładów pracy.
Sprawdź zainteresowanie tym ogłoszeniem
Wyświetlenia
Data dodania
Ostatnio widziany
Obserwujących
Wysłane zapytania
Odsłony telefonu
Far-Invest
Konto firmowe
Na Lento.pl od 02 sty 2013
Odpowiada szybko
Strona użytkownika
- Wypromuj ogłoszenie
- Zgłoś naruszenie
- Drukuj ulotkę
- Edytuj/usuń ogłoszenie
- Udostępnij ogłoszenie
- Dodaj na Facebook










